Overview
High performance secondary glazed louvre component system designed for use in commercial buildings with no integrated screening.
Altair® Louvre Description and Functions
Extruded “T” shaped aluminium operating bars provide a strong, non corrosive, durable and smooth operating mechanism. It also adds extra security as the bars operate to the outside of the channel at all times.
For long and maintenance free use the operating and over centre locking mechanisms are manufactured from non corrosive material, including all rivets and fasteners.
Injection moulded bearings made of acetal use the living
hinge concept to pull the louvre blade against the channel as the window is closed. This results in higher resistance to water and air. Security is now increased by interlocking teeth in the bearing retainer. (Tested to over 40,000 open/close cycles).
Clips are manufactured from UV stabilised polypropylene. The clip colour is solid throughout. Primary and secondary drainage channels within the louvre clips direct the flow of any water to the outside of the building. Colour matching is available for Breezway Standard Colour range.
Altair keylocks are zinc cast with a brushed chrome finish. The folding key design allows easy operation when installed in frames with deep jambs or reveals.
The handle is made entirely from a UV stabilised acetal. This makes it not only non corrosive, but ideal for commercial areas, as it will spring back to position, even when bent severely. For other handle options see the Altair Handles section. Colour matching is available for Breezway Standard Colour range.
The Altair Louvre channel is made from 6060-T5 extruded aluminium.
Diagram Notes:
Extruded “T” shaped aluminium operating bars provide a strong, non corrosive, durable and smooth operating mechanism. It also adds extra security as the bars operate to the outside of the channel at all times.
For long and maintenance free use the operating and over centre locking mechanisms are manufactured from non corrosive material, including all rivets and fasteners.
Injection moulded bearings made of acetal use the living
hinge concept to pull the louvre blade against the channel as the window is closed. This results in higher resistance to water and air. Security is now increased by interlocking teeth in the bearing retainer. (Tested to over 40,000 open/close cycles).
Clips are manufactured from UV stabilised polypropylene. The clip colour is solid throughout. Primary and secondary drainage channels within the louvre clips direct the flow of any water to the outside of the building. Colour matching is available for Breezway Standard Colour range.
Altair keylocks are zinc cast with a brushed chrome finish. The folding key design allows easy operation when installed in frames with deep jambs or reveals.
The handle is made entirely from a UV stabilised acetal. This makes it not only non corrosive, but ideal for commercial areas, as it will spring back to position, even when bent severely. For other handle options see the Altair Handles section. Colour matching is available for Breezway Standard Colour range.
The Altair Louvre channel is made from 6060-T5 extruded aluminium.
Altair® Louvre Systems
Altair Louvres are available in either the fully integrated Louvre Window System or a Component System for other frames.
Louvre Component System
Product Performance Warranty: Housing
Altair Louvres are available in either the fully integrated Louvre Window System or a Component System for other frames. Altair Louvres are designed to meet and exceed the requirements of AS2047-2014 ”Windows in Buildings”.
The following tables outline the maximum variations that Breezway will warrant per Non-Cyclonic and Cyclonic Wind Classification and Water Penetration as per AS2047-2014 “Windows in Buildings”. Exceeding these constraints will void this Warranty. The limitations have been generated through extensive NATA test results, calculations and over 85 years of experience manufacturing louvre windows.
Breezway Window Systems supplied fully glazed by Breezway Australia will be labelled as compliant with AS2047-2014 by Breezway Australia.
Breezway Window Systems supplied unglazed by Breezway Australia can be labelled as compliant with AS2047-2014 by the window system supplier when glazed according to the limitations of this Product Performance Warranty.
Window fabricators installing the Altair Component System within a window frame will be able to label their window as compliant with AS2047-2014 when:
- The limitations of this Product Performance Warranty are complied with.
- The complete Altair Component System is used, complete with Altair Weatherstrips and seals. If the complete Altair Component System is not used, the window fabricator assumes responsibility for the testing and warranting of the performance of the window system.
- The Altair Component System is installed to Breezway procedures.
Window fabricators installing the Altair Component System within a window frame assume responsibility for:
- The fixing of the Altair Component System into the window frame.
- The performance and fixings of the frame, mullions and transoms.
For residential or commercial building classes, or for housing outside the limitations of AS4055, please consult Breezway with your specific project requirements so we can correctly apply the relevant performance warranty constraints.
Note
SLS (Serviceability Limit State Wind Pressure / Design Wind Pressure / Permissible Stress) The ability of the window to perform the intended function under normal service conditions avoiding excessive deflection or the appearance of buckling.
ULS (Ultimate Limit State Wind Pressure / Ultimate Strength Pressure) The maximum load carrying resistance of the window. Subjecting the window to wind pressures in excess of the ULS is likely to result in the window collapsing.
1. Glass blade size and flatness
Glass blades must be 6.0mm ±0.1mm thick and must be straight and flat within 0.3mm/m.
Glass blades must be 152.00mm ±0.6mm high or 102.00mm ±0.6mm high.
2. Mullions
Mullion heights are based on a 1:250 deflection ratio and the maximum warranted louvre bay widths for each N or C rating and window location.
3. Using the Stronghold System for 152mm blade lengths greater than 900mm
The Stronghold System is an optional feature of the Altair Louvre Window which mechanically fixes the blades into the clips. These mechanical fixings enable bay widths of up to 1200mm to be achieved in some regions. In other regions, the ULS and Water Pass requirements of AS2047-2014 prevent these wider bay widths from being warranted. Easyscreen, Innoscreen or Altair Component System High Profile Sills and standard heights are required.
4. Water Pass Ratings greater than 300Pa
A High Profile Sill is required to achieve Water Pass ratings greater than 300Pa.
5. Narrower, taller bays with toughened glass
The Product Performance Warranty constraints for annealed glass can also be applied to toughened glass. The Product Performance Warranty constraints for toughened glass cannot be applied to annealed glass.
Product Performance Warranty: Altair® Dualair™ Secondary Glazed Louvre Component System
Altair® Louvres are designed to meet and exceed the requirements of AS2047-2014 ”Windows in Buildings”. The following table outlines the maximum variations that Breezway will warrant for Ultimate Limit State Wind Pressure and Water Penetration Resistance as per AS2047-2014 “Windows in Buildings”. Exceeding these constraints will void this Warranty. The limitations have been generated through NATA test results.
Window fabricators installing the Altair Dualair Component System within a window frame will be able to label their window as compliant with AS2047-2014 when:
- The limitations of this Product Performance Warranty are complied with.
- The complete Dualair Component System is used.
- The Dualair Component System is installed to Breezway procedures.
- Window fabricators installing the Dualair Component System within a window frame assume responsibility for:
- The performance and fixings of the frame, mullions and transoms.

- Glass blade size and flatness
Glass blades must be 6.0mm ±0.1mm thick and must be straight and flat within 0.3mm/m. Glass blades must be 152.00mm ±0.6mm high. - Frame Performance Warranty
The Product Performance Warranty detailed above only relates to the Altair Dualair Secondary Glazed Louvre Component System, the product performance limitations of the framing into which the Dualair Component System is installed should also be considered. - Using the Stronghold System for blade lengths greater than 900mm
The Stronghold System is an optional feature of the Altair Louvre Window which mechanically fixes the blades into the clips. These mechanical fixings enable blade lengths of up to 1127mm to be achieved in some situations. In other situations, the ULS and Water Pass requirements of AS2047-2014 prevent these wider bay widths from being warranted.
Testing Standards
Altair® Louvre Windows are tested to meet the mandatory minimum specifications under Australian Standard AS2047 (including AS1288) as required by the Australian Building Code. All windows for the Australian market whether made from timber, aluminium, uPVC or other materials are required to undergo the following performance tests in accordance with AS4420.1 to verify performance claims.
- Deflection Test — positive and negative wind pressures are applied to the face of the window to test the maximum deflection under wind load.
- Operating Force Test — to verify that an opening sash is capable of opening and closing without undue effort.
- Air Infiltration Test — the air leakage of a window is tested to ensure energy and acoustic efficiency.
- Water Penetration Resistance Test — this test is designed to ensure no water leaks through the window into the building.
- Ultimate Strength Test — negative and positive wind pressures are applied to the window to at least 1.5 times the design wind pressure to ensure it does not fail in unusual wind conditions.
Warranty
Subject to the Warranty Claim Procedure, Breezway warrants the goods supplied to be free of defects arising from faulty workmanship or materials for a period of up to ten (10) years on frames, seven (7) years on louvre moving parts, and three (3) years on electronic components from the date of purchase and guarantees that services will be rendered with due care and skill. Please download the PDF’s below relevant to your date of purchase.
Breezway VENTORA Warranty Download https://www.breezway.com.au/downloads/australia/Breezway_VENTORA_Warranty_March_2024.pdf
Louvre Care And Maintenance
Maintaining Aluminium Finishes
Regular maintenance of the surface finish will be necessary to reduce the rate of weathering. The frequency of cleaning will depend on the environmental conditions, but as a guide should be done at 3 monthly intervals, or more frequently in aggressive coastal or industrial environments.
- Remove loose deposits by gently brushing or hosing.
- Clean using a sponge or soft brush and warm water with a mild detergent. Avoid cleaning agents with a caustic base, abrasive materials or harsh chemicals.
- Rinse with clean water.
- Dry with a chamois (optional).
Apply a ‘non-abrasive’ car polish to maintain the lustre of the finish (optional).
Glass Maintenance
For best results glass blades should be regularly cleaned with mild, non-abrasive detergents. Low e glass blades should be installed with the coated side facing to the inside of the building and should only be cleaned with mild, non-abrasive detergents. Abrasive detergents or cleaning tools will visibly damage the low e coating.
Louvre Maintenance
It is recommended that inspection be carried out at the time of installation and then at yearly intervals. This may be required more frequently depending upon the variation of location, and environmental conditions.
Inspection and checks
- Inspect all fittings and screw fixings for firmness.
- Ensure that all Stronghold System pins (if present) are firmly clicked in place.
- Check the louvre clips for any degradation over time.
- Check that the blade is firmly and safely positioned in the clips.
- Ensure all louvre blades operate freely.
- Ensure that seals are in place and clean.
- The Powerlouvre™ Window should be operated at least once per month.
Lubrication
All internal louvre operating mechanisms are prelubricated, prior to assembly, with a clear lubricant where required. Under normal conditions this will be satisfactory for the life of the window.
Plastic Maintenance
When cleaning plastic components it is recommended to be done by wetting a cloth with a neutral cleaning agent such as a car wash without wax/polymer, or alternatively a mild furniture polish. Acidic or alkaline cleaning solutions, such as vinegar, detergents and glass cleaners should be avoided.
Lock Maintenance
The lock has been designed to be maintenance free besides regular cleaning. If the lock barrel needs to be replaced, for example to change the key types, or if the lock mechanism suffers damage, please contact the window fabricator that supplied the louvre.
Selecting The Right Aluminium Finish
The aluminium components of Altair® Louvre windows are available in three different surface finishes: anodised, standard powder coating and high performance powder coating.
Powder coatings are polyester coatings from leading powder suppliers applied to a thickness of 50 μm and anodised finishes are to a thickness of 25 μm. Over time, weathering of powder coated surfaces should be expected, resulting in a gradual change in appearance.
This will be evident in loss of gloss, chalking, colour change and erosion of the powder coatings. Selecting the right powder for the atmospheric conditions of the site and correct maintenance will be critical to the ongoing appearance of the finish.
The application of high durability powder will reduce this deterioration and is essential for severe industrial, coastal or tropical environments.
Note that industry accepted colour variation can occur during the aluminium anodising process.
Energy Efficiency
Breezway® Altair® Louvre Windows can help to enhance the energy efficiency and comfort of a building by offering:
Maximum ventilation
With no fixed panes and blades that open almost fully horizontally (87º) Altair Louvre Windows welcome fresh, cooling breezes. These cooling breezes reduce the need for power hungry electric air conditioning systems, thereby helping to save our fragile environment.
Tight Sealing
Altair Louvre Windows have an air infiltration rating that meets the requirements of AS2047-2014. Tight sealing reduces draughts thereby allowing heating and cooling systems to run more efficiently
Choice of Glazing
A variety of energy efficient glazing options is available to meet local requirements. For example, in cooling climates toned glass blades reduce the amount of hot sunlight that enters a building. In mixed and heating climates, the improved insulating properties of low e glass blades offer thermal performance comparable to clear double glazing.
Additional Benefits of the Altair Dualair Secondary Glazed Louvre System
The secondary glazing configuration of the Dualair System results in significant improvements to the thermal insulation of Dualair Window Systems due to the large air gap.
Energy ratings of most windows sold in Australia can be found in the Window Energy Rating Scheme (WERS) website, www.awawers.net
In warm climates the shading offered by tinted glass has a positive impact on the window’s energy rating.
In cold and mixed climates the insulating properties of clear low e glass blades give comparative thermal performance to clear double glazing.
Compliance with the energy efficiency provisions of both Section J and Clause 3.12.2 of the National Construction Code is possible when Altair Louvre Windows are used appropriately.
Airborne Sound Insulation
Dualair System
The Altair Dualair Secondary Glazed Louvre system has been laboratory tested for sound transmission loss.
The laboratory tests were conducted by the CSIRO on an Altair Dualair Secondary Glazed Louvre System. The windows comprised of Altair Dualair Secondary Glazed Louvre System within Alspec McArthur 150mm Framing. Testing was conducted to AS/NZS 1276.1:1999 (ISO 717-1:1996).
Test results for Dualair System.

Breezway® Policy for Louvres Adjacent to Australian Swimming Pools
Using Altair® Louvres Adjacent to Swimming Pools
Clause 2.6 of AS1926.1-2012 “Swimming pool safety. Part 1: Safety barriers for swimming pools” defines the requirements for windows opening directly into a pool area. Openable portions of the windows must comply with one of the following:
- Be totally covered by bars or a metal screen, that are fixed to the building with fasteners that can only be removed by the use of a tool. The opening between bars and the horizontal dimensions of openings in a metal screen shall not be greater than 100mm.
- Be fixed to the building with fasteners that can only be removed by use of a tool so that it will remain closed or will open to a maximum of 100mm.
A 152mm Altair Louvre Window with the Stronghold System and restricted opening to 100mm will comply with AS1926.1-2012 clause 2.6(b).
A 102mm Altair Louvre Window with the Stronghold System will comply with AS1926.1-2012 clause 2.6(b).
If compliance is required to earlier versions of AS1926 where restricted openings must also satisfy clause 3.1 then:
A 152mm Altair Louvre with the Stronghold System and restricted opening to 80mm and maximum blade length of 600mm will comply with AS1926.1-2007 clause 2.7(a)ii
A 102mm Altair Louvre with the Stronghold System, toughened glass blades and restricted opening to 80mm and a maximum blade length of 600mm will comply with AS1926.1-2007 clause 2.7(a)ii.
Fall Prevention through Openable Louvre Windows
Using Altair Louvres to Meet Fall Prevention through Openable Window Requirements
Clauses 11.3.7, 11.3.8 and D3D29 of the Building Code of Australia detail the situations in which openable windows require fall prevention measures and the requirements that windows in these situations must meet.
The following Altair Louvre Window configurations have passed testing to “AS5203:2016 – Protection of Openable Windows/Fall Prevention”:
Note
The Altair Louvre restricted opening devices and the Stronghold System blade retention are permanent fixtures which cannot be removed, unlocked or overridden without complex tool usage (such as a drill). Products that can be unlocked or overridden with a simple tool or two handed operation, such as removing a louvre blade with coordinated two-handed operation, will also require additional barriers to 865mm.
If screens will be used to provide protection as per Clauses 11.3.7, 11.3.8 and D3D29 then the Altair Louvre Windows will not require the Stronghold System and will not require blade openings to be restricted. The window frame and securely fitted screen assembly should be tested to “AS5203:2016 – Protection of Openable Windows/Fall Prevention” to ensure that the assembly will not permit a 125mm sphere to pass through it and resist a horizontal outward force of 250N.
Balustrades
Breezway Altair Louvre products are not a balustrade system. Nor are any other window types. Balustrades are one type of barrier. Altair louvres with the Stronghold System and suitable openings are another. It is always important to ensure that a particular barrier system complies with the relevant Building Codes and associated Standards. Breezway louvres with the Stronghold System have passed testing up to 750N for AS1170.1 barrier infill loadings, making them suitable for use in the following occupancy types: A, B, E, and C3. For other occupancy types, appropriate, permanently fixed screening is recommended.

- Dualair Secondary Glazed System requires both inner and outer glazing layers to be configured for compliance.
Altair® Louvre Gallery Sets
For Glass & Aluminium Blades
Altair Louvre
Altair Powerlouvre® System
Altair Keylock Louvre
152mm Fixed Louvre
Note
Altair louvres cannot be used on rake head windows.
Altair® Louvre Handles
Standard Handle
Low Profile Handle
Ring Handle (P13)
Powerlouvre™ System*
Map Rod
Altair® 152mm Louvre Standard Handle Positions
Formulas for Other Handle Positions
- Low Profile Handle Position = Standard Handle Position – 3mm
- Ring Handle Position = Standard Handle Position +22mm

Note

Altair® Louvres With Restricted Opening
Altair Louvre Windows can be restricted to only allow a nominal opening of 80mm or 100mm between open single glaze blades, and 72mm between IGLU double glazed blades.
Restricted openings can be used to prevent clips from impacting screens in some frames, or to limit the size of objects able to pass through the open window.
For details on compliance options for louvres adjacent to swimming pools and for fall prevention through openable windows see page 10.
Altair® Louvre Keylock
The Altair Keylock has been designed to be inconspicuous, strong and durable.
Improved Aesthetics
Housing the lock mechanisms internally results in a low profile design. The brushed chrome finish suits all aluminium finishes.
Strong & Durable
All metal construction and housing the mechanisms internally results in a strong, highly durable lock.
Easy Operation With Deep Jambs Or Reveals
The folding key design allows easy locking and unlocking even when situated right beside deep jambs or reveals.
Maintenance Free
No onging maintenance require besides normal cleaning. Tested and passed 15,000 lock & unlock cycles.

Glass Blades
Glass Type
Glass blades must be 6mm thick and monolithic. Laminated glass should not be used due to the risk of delamination.
Breezway Toughened Glass Blades
Regular and toughened glass blades are available directly from Breezway® Australia. Toughened glass should be specified in wet areas or areas where there is a chance of human impact as not only is toughened glass stronger but, if it does break, it produces small pieces of glass with square edges rather than jagged shards of glass which are likely to cause injury. Refer to Glass Standard AS1288 for detailed requirements.
Breezway toughened glass blades are processed to Breezway’s demanding quality specifications which produces blades with a flatness tolerance of +/– 0.35mm per metre. This exceptional flatness ensures excellent sealing and therefore improved wind and water performances. Breezway toughened glass blades are available in clear, clear low e, grey, green, satina and satinlite to allow matching to other windows.
Extruded Aluminium Blades
Refined Design
Breezway aluminium blades feature low profile weatherseals and a clean design at the top of the blade for a minimalist, modern aesthetic.

152mm Aluminium Blade

Altair® PowerlouvreTM System
Anticipation of needs
When paired with intelligent control systems, automated Powerlouvre Windows can be opened and closed in anticipation of the building occupant’s needs. Unlike manually operated windows which are normally opened and closed only once the building occupant has become uncomfortable.
More frequent use
With operation as simple and easy as the push of a button, Altair Powerlouvre windows will be opened and closed more frequently than windows which require more effort to operate, and therefore the benefits of the windows will be enjoyed more frequently.
Integrated Motor and Gearbox
The Altair Powerlouvre Window incorporates a motor and gearbox concealed within the Easyscreen Window Frame or within the head section, resulting in an automated louvre window with no visible motors, rods or arms.
Variety of Control Options
Control is possible via wall switches, remote control systems or integration into building management systems.
Frame Options
Altair Powerlouvre Windows are available as a complete Window System within the Breezway Easyscreen or Innoscreen Surround Frames, or in component form that can be installed in flat commercial frames or timber frames. (See the WINDOW SYSTEM and OTHER FRAMES sections for standard sizes).
Ease of use
Altair Powerlouvre WIndows can easily be operated by young, aged or infirm building occupants.
PowerlouvreTM System Operating Conditions

PowerlouvreTM System Maintenance
Breezway Powerlouvre Windows should be operated at monthly intervals. Frames should be cleaned periodically as per Breezway Care and Maintenance recommendations.
PowerlouvreTM System Opening Configurations
Powerlouvre Windows that are 2-9 blades high contain one motor per bay and are wired such that the entire window opens and closes simultaneously.
Powerlouvre Windows that are 10-18 blades high contain 2 motors per bay, one motor drives the blades in the top half of the bay and the other motor drives the blades in the bottom half of the bay. 10-18 Blade high Powerlouvre Windows are wired such that the blades in the top halves of all the bays form a bank that opens and closes simultaneously and the blades in the bottom halves of all the bays form a second bank that opens and closes simultaneously. The top and bottom banks can be operated independantly of each other.


PowerlouvreTM System Electrical Requirements & Wiring
- Operating voltage: 24V DC
- Maximum allowed voltage: 29V DC
- Maximum constant current: 0.25A per motor
- Maximum startup current: 0.4A per motor
- Opening time: Approx 14 seconds
- Working temperature: -20°C to +60°C
Note
In extreme cold conditions the windows will not operate if there is excessive ice build up or if the louvre blades are frozen together.

The direction in which the Powerlouvre System moves is determined by the polarity of the low voltage current supplied. Once the Powerlouvre Window has fully opened or fully closed, an electronic circuit stops power being delivered to the motors to prevent the motor being damaged should power be supplied continuously.
Battery Backup
The Powerlouvre System has no integrated battery back up. If the power supply fails the window cannot be operated. If battery back up is required, systems are readily available and can be integrated by qualified suppliers.
Breezway® Transformers
Breezway supplies transformers (as optional extras) that have been specified to meet the particular requirements of Powerlouvre Windows.
- 240V AC input current.
- 24V DC output.
- Two model options with sufficient amps to power up to 6 or 14 Powerlouvre Motors.
- Built-in overload protection to prevent accidental short circuits from damaging the transformer.
Transformers should be installed in an easily accessible location. It is recommended that transformers are located in a position that enables easy power cycling.
Controlling PowerlouvreTM System
Control options include:
- Bell press style wall switches, which allow for simple open and close functionality. One button for open, and one for close.
- Breezway Powerlouvre Apptivate® Advance Control Units, which allow control via a touch sensitive wall plate, remote control via a smartphone application, or automatic operation in response to temperature or timer events.
- Building management systems, which allow control along with other automated building products and automatic operation in response to various sensors and inputs.
Altair® Louvres with the Stronghold® System

Viewed from inside
Blade Retention System
Blades are retained in Stronghold Clips by a pin that passes through the clips, bearing and blade. Once installed, the pins cannot be removed without tools and the blades are prevented from being removed from the clips. Pins are visible on the inside/underside of the clips.
High Rise Applications
Breezway Altair Stronghold Louvres are fit for purpose for installation more than 2 metres above ground level. As the entire glazed area can be opened to allow airflow they can be used to maximise natural ventilation and cooling in multi level applications. They are also ideal for creating winter gardens as they can be opened for ventilation in warmer weather or closed for protection in colder weather.
Frame Options
Altair Stronghold Louvre Windows are available as complete window systems within the Breezway Easyscreen®, Innoscreen® and SL2® Window Systems or in
component form for installation into other manufacturer’s framing systems.
Fall Prevention
Altair Louvre Windows with the Stronghold System are ideal for use in bedrooms, early childhood centres and other situations where fall prevention measures are required by the BCA. With openings on both sides of every blade, they deliver real ventilation benefits for naturally cool, healthy and safe spaces. BCA compliance is proven by successful testing to the Industry Code of Practice “ICP.005 – Protection of Openable Window Testing Specification”.
Blade Options
Processed and toughened glass and processed aluminium blades can be used in the Stronghold System. Heat soak testing of glass blades already processed for use with the Stronghold System is also available. The Altair Stronghold System is available for use with both 152mm and 102mm high blades.
Blade Type Compatibility

PowerlouvreTM System Compatibility
Altair Stronghold Clips are fully compatible with the Powerlouvre Systems and have no impact on minimum and maximum Powerlouvre Window sizes.
Maintenance
If blades need to be removed from an Altair Stronghold Louvre Window or if broken blades need to be replaced, the pins must be removed. The removal process requires tools and will destroy the pins so new pins will be required when blades are re-installed.
Compliance With Balustrading Requirements
The Stronghold System is a window, not a balustrade system. The Stronghold System has been tested to AS2047 “Windows in Buildings” and has completed static load, swing bag and sphere tests. Test reports are available from the Breezway website. It is the responsibility of the building designer to specify systems and products that meet the barrier and balustrade requirements for a building.
Window Sizes
Window Size Constraints
The Altair Product Performance Warranty size constraints for Ultimate Limit State Pressure, Serviceability Limit State Pressure and Water Pass must be adhered to in order to ensure compliance with AS2047.
Standard Heights
The standard heights of Breezway Window Systems with Altair Stronghold Louvres are identical to the standard heights of Breezway Window Systems with regular Altair Louvres.
Dualair® Secondary Glazed Altair Louvre Component System
The Dualair System combines the performance benefits of secondary glazing with the ventilation benefits of Altair Louvre Windows.

Airborne Sound Isolation
The large gap between the inner and outer Altair Louvre Blades of the Dualair System result in high levels of sound reduction. Rw ratings of up to 35 are possible.
Thermal Performance
The large air gap between the inner and outer blades delivers thermal insulation performance comparable to that of windows with thermally broken aluminium framing and argon-filled double glazing with low e coatings. U-values as low as 2.4 are possible with monolithic glass blades with low e coatings.
Water Penetration Resistance
The pressure equalising design of the Dualair System allows for water penetration resistance performance of 600 Pa at a window size of 2,658mm (h) x 1,041mm (w). (Water Penetration Resistance of 620Pa is also available as narrower window widths.)
Maximum Cooling Natural Ventilation
With blades that open almost horizontally and no fixed panes of glass, the Dualair System maximises the ventilation opening of the window to help deliver healthy, naturally comfortable spaces.
Integrated Shading & Privacy
When aluminium blades or printed glass blades are used to the outside, the Dualair System offers integrated shading from solar heat gain and visual privacy without the need for internal blinds or curtains.
Secondary Glazing within a Single Frame
The Dualair System is installed as a single unit, allowing a single installation occasion into a single set of subframing.
Unified Aesthetics
With both the inner and outer window types being identical, the Dualair System offers the appearance of a single window unit while offering the performance benefits of secondary glazing.
Compatible Frames

The Dualair System has been customised for the Alspec McArthur EVO 150mm Centre Pocket Framing and the Alspec Hunter EVO 150mm Acoustic Framing. When assembling these framing systems for use with the Dualair System, some customised processing and assembly is required, so clear, early communication with the fabricator is recommended.
To create space for the Powerlouvre Motors to be concealed within the head of the frame, the Alspec McArthur 150mm Plain Frame extrusion (AS74) is used regardless of whether the jambs, mullions, sills or transoms are from the McArhtur EVO 150m Centre Pocket range or the Hunter EVO 150mm Acoustic range.
More information on the framing systems that are compatible with the Dualair System is available from the Alspec website:
www.alspec.com.au/macarthur-150mm-centre-pocket-framing
www.alspec.com.au/hunter-evo-150mm-acoustic-framing
Dualair® System Configurations
| Product | Description | |
|---|---|---|
| Dualair Louvre System |
|
Two Altair Louvre Galleries in a secondary glazing configuration within a 150mm commercial framing system. The outer Altair Louvre is a Powerlouvre Gallery, the inner Altair Louvre can be either a Powerlouvre Gallery or manually operated. |
| Dualair Louvre System over a fixed lite |
|
Using the transoms of the commercial framing, a Dualair System over a fixed lite within a single bay is possible within the McArthur EVO 150mm Centre Pocket Frame. |
| Dualair Louvre System with external aluminium blades |
|
Aluminium blades or printed glass blades to the outside deliver shading and privacy without the need for internal blinds or curtains. |
Note
Dualair Inside Jamb Plates are compatible with all Alspec McArthur EVO 150mm Centre Pocket jambs and mullions. Dualair Outside
Jamb Plates are compatible with all Alspec Hunter EVO 150mm Acoustic jambs and mullions.
The Alspec McArthur 150mm Plain Frame extrusion (AS74) is used as the head of the frame regardless of whether the jambs, mullions, sills or transoms are from the McArthtur EVO 150mm Centre Pocket range or the Hunter EVO 150mm Acoustic range.
Standard Heights* – Dualair® System

*Off-standard heights are not available
**102mm blade height is not available
Opening Configurations

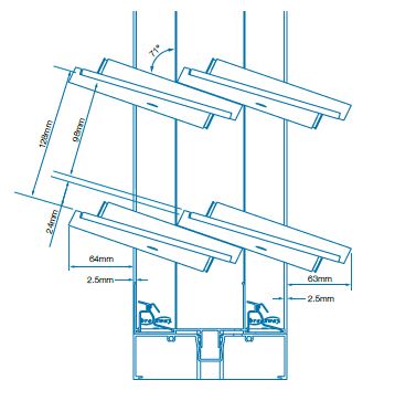
Dualair Blade Formulas

Blade Cut Length Alspec McArthur EVO Jambs
Glass & aluminium blades:
Blade Length = daylight opening width – 55mm
Blade Length = window width – 145mm
Glass & aluminium Stronghold blades:
Blade Length = daylight opening width – 51mm
Blade Length = window width – 141mm
Blade Cut Length Alspec Hunter EVO Jambs
Glass & aluminium blades:
Blade Length = daylight opening width – 55mm
Blade Length = window width – 155mm
Glass & aluminium Stronghold blades:
Blade Length = daylight opening width – 51mm
Blade Length = window width – 151mm
Note
For allowable length of blades refer to AS1288 and Breezway Louvre Windows’s PRODUCT PERFORMANCE WARRANTY.
Allowable tolerance = +/-0.6mm
Dualair® Restricted Openings
A base opening restriction is required for Dualair Systems to avoid interference between the inner and outer Altair clips. Other Altair restricted openings for 152mm clips are also available with the Dualair System:
- 100mm restricted opening
- 80mm restricted opening

Dualair System Checklist
| REQUIRED INFORMATION viewed from inside | OPTIONAL INFORMATION |
|---|---|
| Dualair System height expressed as blade quantity | Handle side |
| Window width, excluding Alspec Jambs. | Keylock |
| Jamb plate to suit McArthur EVO 150mm Frame or Hunter EVO Acoustic 150mm Frame | Restricted openings |
| Manual or PowerlouvreTM Gallery to inside | |
| With or without the Stronghold® System | |
| Handle type, if inner gallery is manually operated | |
| Clips & Handle Colour | |
| Blade Types (inner & outer) |
Note
Dualair System Recommended Specification
A tight specification will help to make sure that what you specify ends up in your building thereby achieving your design objectives.
The louvre windows shall be Breezway® Altair® Dualair® Secondary Glazed Louvre Windows
Unique features:
- Altair Louvres in a secondary glazing configuration within 150mm commercial glazing.
- Minimum Rw rating of 35 dB.
- Maximum U-value of 3.8 W/m2.K.
- Pressure equalising design and Unique drainage channels for superior water performance.
- Unique ‘Living Hinge’ design that pulls the clips tightly against the channel when closed for superior water performance and air infiltration.
- Low profile keylock with lock barrel housed inside the louvre channel.
- Passed testing to 40,000 open/close cycles for long operational life.
- Passed testing to 15,000 lock/unlock cycles for long operational life.
- Altair Dualair Louvres have passed AS2047 testing at 17 blades high.
- Powerlouvre motors are fully concealed within the head of the frame.
- Pinned design that mechanically retains blades within the clips to prevent blade dislodgement under human impact (optional with the Stronghold System).
- Custom designed for the Alspec McArthur EVO 150mm Centre Pocket frame and the Alspec Hunter EVO Acoustic 150mm frame.
